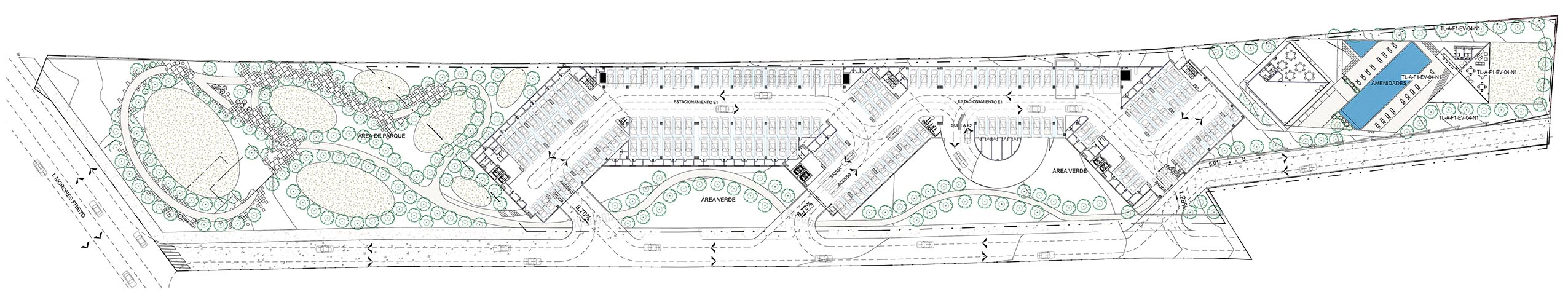
Tulé es un conjunto multifamiliar que consiste en tres torres, dos de 16 niveles y una de 15, albergando 279 departamentos. Las tres torres descansan sobre un volumen de estacionamiento de cuatro niveles que alberga áreas de servicio, tanto mantenimiento como administración, así como áreas para bicicletas, 614 cajones de estacionamiento y un total de 280 bodegas para los departamentos.
El proyecto para su ejecución se divide en 3 etapas. La primera etapa consta de una torre de 95 departamentos, estos divididos en 15 pisos que cuentan con 4 departamentos tipo y un último nivel donde se encuentran 3 departamentos tipo y el pent-house. La segunda etapa es equivalente a la primera, con respecto a la torre. La tercera etapa cuenta con catorce niveles tipo y un nivel de penthouse por lo que en total son 89 departamentos.
El estacionamiento también se subdivide conforme a las tres etapas, donde la primera etapa cuenta con 58 bodegas y 195 cajones de estacionamiento. La segunda etapa consta de 92 bodegas y 224 cajones. Y la última o tercera etapa está conformada por 130 bodegas y 195 cajones.
Las torres se comunican a una zona de amenidades que se encuentra en el lado sureste del proyecto, a través de un acceso controlado en el segundo nivel de estacionamiento, cuentan con un programa variado de actividades para el usuario. Las amenidades se dividen en dos volúmenes conectados por una zona de alberca, asoleaderos y terrazas, que permiten al usuario generar diversas actividades sin salir del complejo.
Las torres tienen un diseño dinámico en fachada con vistas y ventilación para todos los departamentos, con áreas comunes ventiladas y bodegas para equipamiento de cada departamento ubicadas en los estacionamientos, así como también escaleras de emergencia y elevador en todos los niveles. Los muros exteriores y cristalería protegen al interior de la intemperie y cuentan con estudios de impacto térmico que avalan el correcto aislamiento de los departamentos.
Las salidas de emergencia accesos y rutas de evacuación facilitan la evacuación del edificio y la entrada de personal de emergencia. Las tres torres cuentan con sistema de detección contra incendios, y escaleras de emergencia en uno de los extremos de la torre.
Los departamentos cuentan con iluminación en todos sus espacios interiores y exteriores y junto con todas las salidas de iluminación necesarias, apagadores y contactos, se cuenta además con salida de telecomunicaciones (teléfono, televisión de paga, internet) ubicadas en zonas estratégicas que varían dependiendo del departamento (ejemplo: cocina, sala, sala de TV, recamara principal).
Además se cuenta con preparación para aire acondicionado con equipos divididos en cuartos de máquinas ubicados en los extremos oriente y poniente de cada planta general.
Se contempló dotar a los departamentos con las instalaciones hidrosanitarias necesarias, tomando en cuenta que todas las salidas de agua en baños y cocinas, junto con el mobiliario sanitario de cada departamento cuentan con factor de ahorro de agua para obtener mayor sustentabilidad y menor consumo de agua.
Todas las ventanas llevan cristal de 6mm y aprovechan las mejores vistas disponibles hacia el cerro de las Mitras y la Huasteca.
El diseño de los departamentos tipo se dividen en cuatro tipos y el penthouse. Todos cuentan con un área social abierta, donde se ubica la sala y el comedor, conectada a la cocina y un área de lavandería.
Las diferencias entre los departamentos se reflejan en la cantidad de recámaras y baños que impactan en los metros cuadrados de cada departamento: el departamento T1 cuenta con 74.21m²; el departamento t2 cuenta con 87.76m²; el departamento T3A con 94.73m²; el departamento T4 con 107.60m². El penthouse a su vez posee mayores dimensiones en cuanto a áreas sociales y áreas privadas, dando un total de 149.46m².